41-49 ann Street, Donnybrook. Qld. 4510
41-49 ann Street, Donnybrook. Qld. 4510Basics
- Date added: Added 3 weeks ago
- Category: RESIDENTIAL, RURAL
- Type: HOUSES, RURAL
- Status: FOR SALE
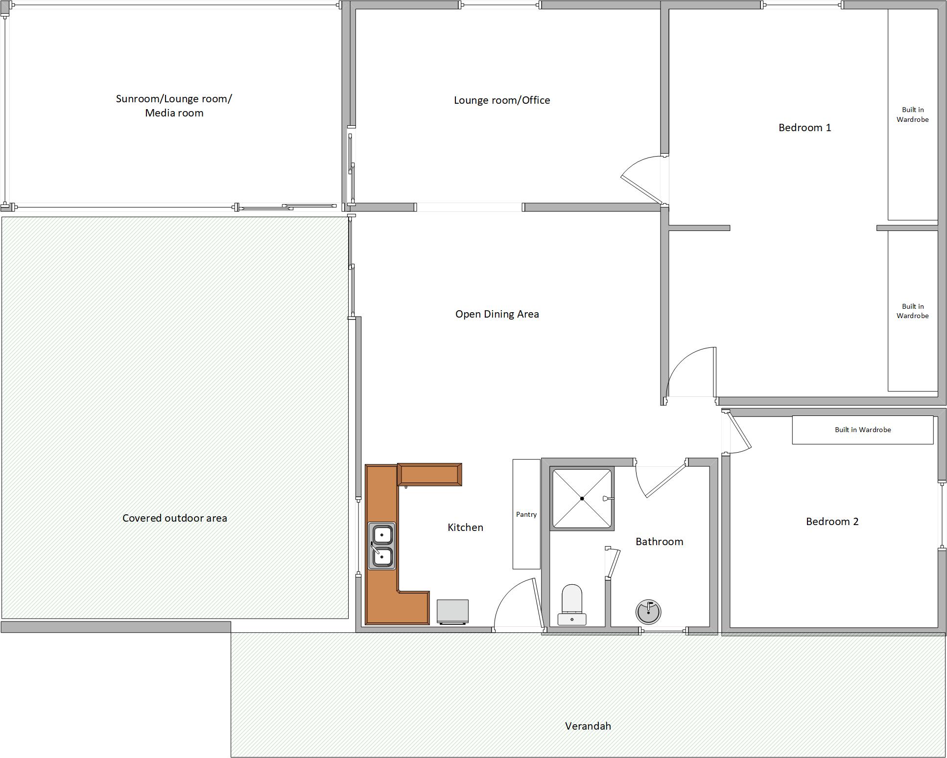
- Bedrooms: 2
- Bathrooms: 1
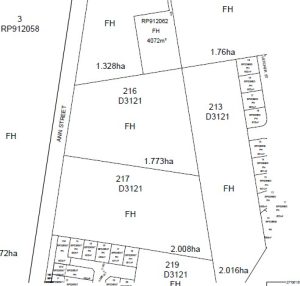
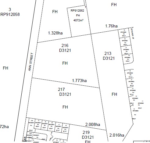
- Lot size: 4 acres
Description
-
Description:
HUGE PRICE DROP! Motivated Seller – Coastal Acreage
Act fast – the price has just been slashed on this private 4-acre Donnybrook retreat! The seller is motivated and ready to move on, creating a rare opportunity for savvy buyers. With room for trucks, boats or caravans and the beach, shops and bowls club all just a short stroll away, this is relaxed coastal living at an unbeatable price. Opportunities like this don’t come twice – inspect today before it’s gone!
The Home
- 2 spacious BI bedrooms – Large master leading into second room that could easily be converted to a 3rd bedroom
- Large sunroom/lounge/media room
- Separate lounge room / office
- Kitchen / dining
- Good sized bathroom with separate shower and toilet.
- Massive outdoor area overlooking leafy backyard
The Land Extras
- Massive 18m x 10m (approx.) garage and workshop
- Large caravan carport
- Gazebo and BBQ pit area for entertaining
- Electric gated entry for privacy and security
- Approx. 5 kw solar system (approx. 2 years old)-back to the grid
- Approx 49,000 litres rainwater tanks
- Bore equipped with electric pump + second unequipped bore
- Sewerage connected
- Citrus and mango trees, easy-care gardens, and plenty of open space
- Fully fenced with chain link – ideal for the furry friends
- Zoned General Residential
- Rates - Approx $2500 P/A
The House Extras
- UV and particle filter on all house water
- House is steel-frame construction
- Instant hot water system
- New large split system air conditioner
- Termite barriers installed
- Security screens and insect screens throughout
The Location
- Walk to the beach, local shop, and bowls club
- Minutes to the boat ramp and excellent fishing spots along the Pumicestone Passage
- Only 10mins to Bunnings and other major retailers, 20 minutes to Caboolture train station and ten minutes to the highway for an easy commute to Brisbane (1-1/12hours).
- Future development or subdivision potential (STCA) – ideal land bank opportunity
Embrace the laid-back Donnybrook lifestyle and secure your slice of paradise today.
Price: Offers over $1,000,000
Contact: Dawn – 0427 396 622 | [email protected]
Address: 41–49 Ann Street, DonnybrookVendor has purchased elsewhere and is keen to move on!
Open house sat 1st november 10:30-11:30
